Casa Bacardi is a festival activation for the liquor brand of the same name. 
Build by LUTN in collaboration with the with the entertainment production company LIVE NATION. The challenge presented to us was to design and create a modular build, that would fit the delineations and demands of different locations. 
60 x 60 version, as seen in the 2024 Outside Lands
My contributions to this project were in creating build drawings of the overall build, details for its individual assets, and working the changes for subsequent iterations. Original design was briefed by the team at LIVE NATION.
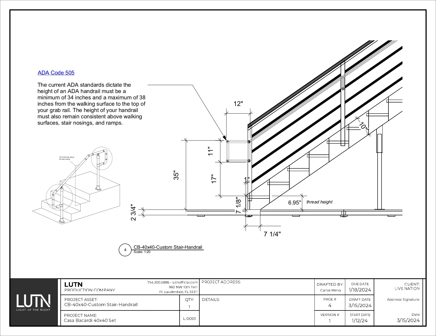
As per the requirements for modularity and the ephemeral nature of a festival setup. We had to design dismountable systems such as that of our custom staircases.
Casa Bacardi: 
40' x 40' Version 
as seen in the 2024 Dreamville and 2024 Sueños Festivals

Render by Cesar Medeiros
Casa Bacardi 40'x40' version at the 2024 Dreamville Festival
Bar Designs and Equipment Layout
Renders by Cesar Medeiros
Software: Blender 3D
Bacardi Fountain 
Build Drawings

Gates
Build Drawings
Design team: 
Carlos E. Mena, Robert Hernandez, Allan Rosado, Jose Alegria

Creative Director Brett Lockwood
Back to Top